Nya, hållbara lokaler i Söndrum med inflyttning mitten 2028. Här flyttar ni in på våning 3 och/eller 4, i ljusa, flexibla lokaler anpassade efter er verksamhet. Redan nu kan ni påverka planlösning och material. Plan 3: ca 380 kvm. Plan 4: ca 220 kvm + sydvänd terrass.
ADRESS:........ Jutaplatsen
OMRÅDE:........ Halmstad, Söndrum
TYP AV LOKAL:……….Kontor
AREA:........ 600 kvm
VÅNING:........ 3-4 av 4
ÖVRIGT:........Kontakta ansvarig fastighetsmäklare för information.
Inget bokningsdatum tillgängligt
Enbart bokade visningar. Ring eller maila för att boka din tid! Vänligen respektera ägarens önskemål om att all kontakt sker via Industriförmedling.

BESKRIVNING
FASTIGHET MED FLEXIBLA LOKALER - INFLYTTNING I MITTEN AV 2028
Under 2027–2028 uppförs en modern och hållbar kommersiell fastighet i fyra våningsplan med inflyttning planerad till mitten av 2028. Fastigheten erbjuder ljusa, flexibla och anpassningsbara lokaler för framtidens verksamheter, med en total uthyrningsbar yta om ca 600 kvm – mitt i ett område som präglas av tillväxt och utveckling. Det finns redan nu möjlighet att påverka planlösningar, materialval och utformning – så att lokalerna blir skräddarsydda efter just er verksamhets behov.
FASTIGHETEN
Byggnaden kommer att bestå av fyra våningsplan:
Plan 1 och 2 blir hemvist för en i området sedan många år etablerad vårdcentral, medan plan 3 och plan 4 erbjuds för uthyrning till företag och verksamheter med olika behov. Byggnaden uppförs med hög kvalitet, hållbara materialval och energieffektiva system för en framtidssäker drift och låg miljöpåverkan.
PLAN 3 - CA 380 KVM
Ett helt våningsplan med moderna, flexibla ytor som kan anpassas efter verksamhetens krav och önskemål.
Här skapas ljusa och effektiva kontorsmiljöer, utbildningslokaler eller andra centrumverksamheter med möjlighet till både öppna ytor och enskilda rum.
Plan 3 har generösa fönsterpartier som ger gott om naturligt ljus och en trivsam arbetsmiljö.
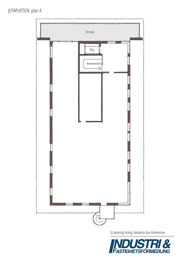
PLAN 4 - CA 220 KVM PLUS TERRASS
Det översta våningsplanet erbjuder ca 220 kvm med samma höga standard och flexibilitet som plan 3 – men med en extra fördel: en terrass i rakt söderläge med fin utsikt över närområdet. Perfekt för representation, paus eller möten i en inspirerande miljö.
Även plan 4 hyrs ut separat och kan utformas helt efter hyresgästens verksamhet.
ANVÄNDNINGSMÖJLIGHETER
Detaljplanen medger centrumverksamhet, vilket ger stor frihet. Här kan såväl kontor, vård, utbildning, restaurang & hotell som andra serviceverksamheter bedrivas.
Detta gör fastigheten idealisk för företag och aktörer som söker moderna, representativa lokaler i ett tillväxtområde med möjlighet att påverka utformningen redan i byggskedet!
LÄGE OCH OMGIVNING
Fastigheten får ett mycket attraktivt och centralt läge, med närhet till kommunikationer, service och natur, centralt i bostadsområdet Söndrum i Halmstad.
På plan 4 erbjuds en sydvänd terrass som ger optimala solförhållanden under hela dagen.
Området utvecklas snabbt och kommer att erbjuda ett levande stadsliv med både bostäder, vård och kommersiell service.
I Söndrum Centrum finns b la livsmedelsaffär, restauranger, kemtvätt, frisör, optiker, bibliotek och apotek. Det är ett väl utbyggt centrum med goda kommunikationer till Halmstad C och Resecentrum.
Hittar du inte det du söker? Fyll i dina önskemål i formuläret så återkommer vi till dig så snart vi får in något vi tror kan vara av intresse!