Moderna kontorsytor i krativ miljö i Halmstads mest kända byggnad och företagsmiljö!
ADRESS:........ Kristian IV:s väg 3
OMRÅDE:........ Halmstad, Centralt, Öster
TYP AV LOKAL:……….Kontor
AREA:........ 625 kvm
VÅNING:........ 4-5 av
HYRA:........1 000 000 kr/år
HYRA/KVM:........1 600 kr/kvm/år
Moms:........Tillkommer
INGÅR I HYRA:........Uppvärmning , Vatten
ÖVRIGT:........El tillkommer samt kyla.
Fastighetsägare för en dialog med hyresgäst gällande hyresupplägg, hyra och kontraktstid.
Inget bokningsdatum tillgängligt
Enbart bokade visningar. Ring eller maila för att boka din tid! Vänligen respektera ägarens önskemål om att all kontakt sker via Industriförmedling.

BESKRIVNING
Exklusiv kontorslokal i Trade Center – en kreativ miljö för moderna företag
Letar du efter något utöver det vanliga? Välkommen till en unik möjlighet att etablera din verksamhet i Trade Center – Halmstads mest välkända företagsadress. Här erbjuds en flexibel kontorslösning som kombinerar professionell funktionalitet med trivsam och kreativ miljö.
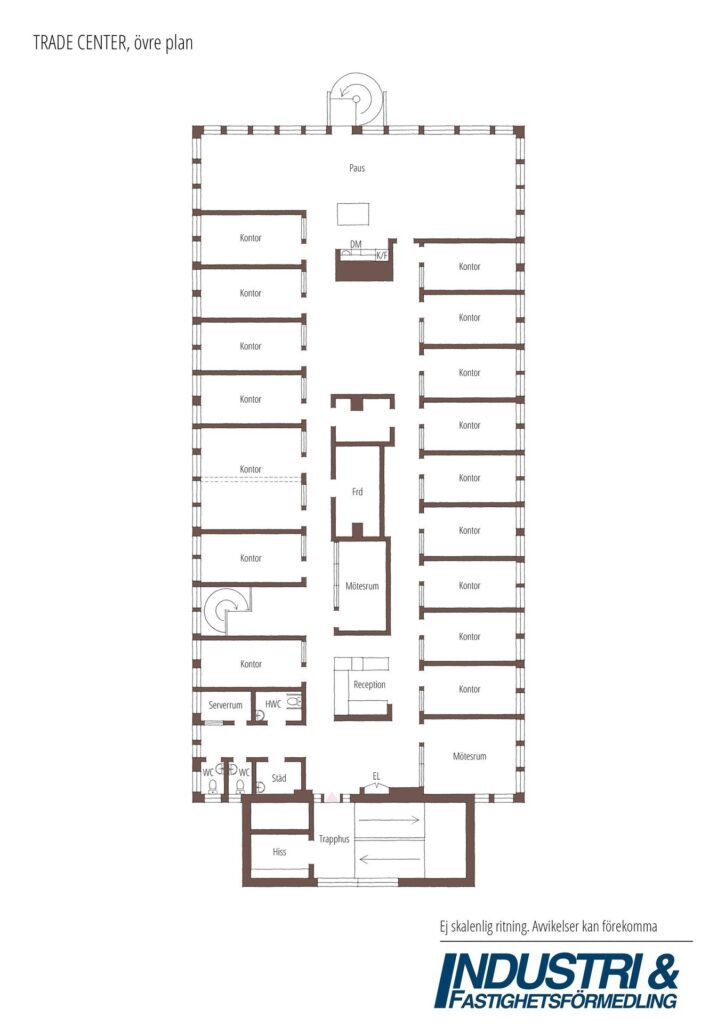
Två våningsplan – totalt 625 kvm
Lokalen är uppdelad på våning 4 och 5, med interntrappa som skapar en naturlig koppling mellan planen. Hiss finns också från trapphuset. Lokalen kan hyras som helhet eller per våningsplan i samråd med hyresvärden.
Våning 5 – ca 425 kvm
Omsorgsfullt planerad kontorsmiljö med flera avskilda kontorsrum, konferensrum, rymligt kök och toaletter. Passar perfekt för både det dagliga arbetet och externa möten.
Våning 4 – ca 200 kvm
Sociala ytor, personalutrymmen, toaletter och flera kontorsrum. Här finns goda möjligheter att anpassa layouten utifrån ert behov – exempelvis skapa fler rum eller öppna ytor.
Ljus, rymd och kreativ energi
Varje rum har generöst ljusinsläpp och erbjuder en miljö som främjar både fokus och kreativitet. Det är en idealisk plats för företag som värderar trivsel, funktion och inspiration i sin arbetsmiljö.
Etablera dig i ett levande affärskluster
Trade Center är mer än en byggnad – det är ett nav för innovation och affärsutveckling. Med närhet till Högskolan i Halmstad finns goda möjligheter till nätverkande och samverkan. I huset finns även restaurang och café, vilket förenklar vardagen för både personal och besökare.
Kommunikation och tillgänglighet i toppklass
Med bara några minuters promenad till resecentrum, citykärnan och direkt anslutning till E6, är det enkelt att ta sig till och från kontoret – oavsett om du pendlar lokalt eller reser nationellt.
Välkommen på visning!
Upplev en kontorslokal där både verksamheten och människorna trivs. Kontakta oss för mer information eller för att boka en visning – det här vill du inte missa!
Hittar du inte det du söker? Fyll i dina önskemål i formuläret så återkommer vi till dig så snart vi får in något vi tror kan vara av intresse!