KONTOR & LAGERYTOR!

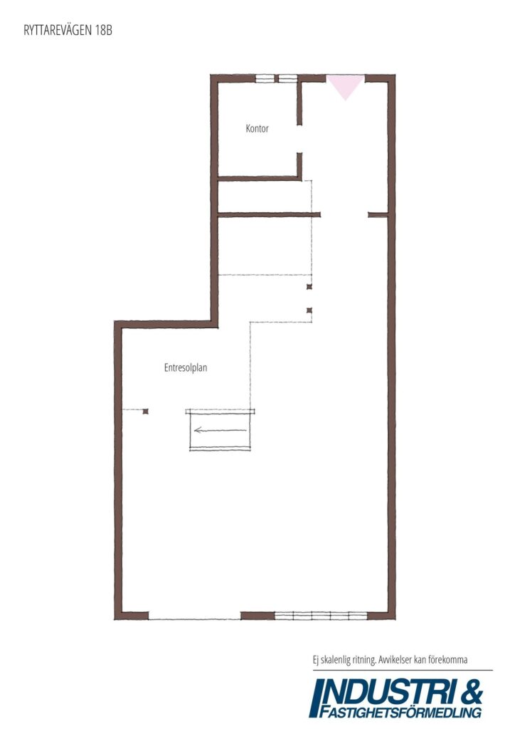
Flexibel lokal om ca 240 kvm med lager, entresol och kontor. Hög takhöjd, port för smidig logistik samt 2 st kontor, pentry och helkaklad WC. Nära E6, Hallarna och havet vid Östra Stranden. Anpassningar möjliga efter behov.

SNABBA FAKTA

ADRESS:........ Ryttarevägen 18B

OMRÅDE:........ Halmstad, Larsfrid

TYP AV LOKAL:……….Kontor

AREA:........ 240 kvm

ANTAL RUM:........ 3

VÅNING:........ 1 av 3

INGÅR I HYRA:........Vatten

ÖVRIGT:........Fibernät i fastigheten man kan ansluta sig till som hyresgäst.
Kontakta ansvarig fastighetsmäklare för resonemang kring hyresnivå etc.

Inget bokningsdatum tillgängligt

Enbart bokade visningar. Ring eller maila för att boka din tid! Vänligen respektera ägarens önskemål om att all kontakt sker via Industriförmedling.

broker

Kontakt | Fastighetsmäklare

ANDRÉAS ANTE NILSSON

073-1499501
ante@industriformedling.se

FAKTA

BESKRIVNING

Attraktiv och flexibel lokal om ca 240–330 kvm – lager, kontor och utmärkt läge

Välkommen till en välplanerad och mångsidig lokal om ca 240 kvm, perfekt för verksamheter som söker en kombination av lager, kontor och god tillgänglighet.

Här erbjuds en rymlig lageryta med generös takhöjd och stor port för smidig in- och utlastning. Entresolplanet skapar extra yta för förvaring eller arbetsplatser och bidrar till en effektiv användning av lokalen.

Kontorsdelen omfattar 2 st rum kompletterat med pentry och en fräsch, helkaklad toalett.

För den som har behov av ytterligare utrymme finns möjlighet att i direkt anslutning utöka lokalen med ca 90 kvm. Denna del erbjuder ytterligare 4 st kontor, pentry samt toalett, vilket ger en total yta om ca 330 kvm – idealiskt för växande verksamheter eller behov av tydlig uppdelning mellan funktioner.

Läget är mycket attraktivt med snabb access till E6:an, närhet till Hallarna köpcentrum samt fina promenadstråk längs Östra Stranden.

Lokalen är flexibel och kan anpassas efter hyresgästens behov.

BILDER

PLANLÖSNINGAR & RITNINGAR

NÄROMRÅDET

INTRESSEANMÄLAN
______

Hittar du inte det du söker? Fyll i dina önskemål i formuläret så återkommer vi till dig så snart vi får in något vi tror kan vara av intresse!