Kontorslokal med generösa ytor om 613 kvm fördelat på två plan!
ADRESS:........ Rörkullsvägen 7
OMRÅDE:........ Halmstad, Söndrums industriområde
TYP AV LOKAL:……….Kontor
AREA:........ 613 kvm
VÅNING:........ 1 av 2
INGÅR I HYRA:........Uppvärmning , Vatten
ÖVRIGT:........Beroende på renovering och anpassning överenskommer vi hyran för just din verksamhet.
Inget bokningsdatum tillgängligt
Enbart bokade visningar. Ring eller maila för att boka din tid! Vänligen respektera ägarens önskemål om att all kontakt sker via Industriförmedling.

BESKRIVNING
Rymlig och lätttillgäglig kontorslokal om 613 kvm fördelat på två plan i Söndrums industriområde. Bra skyltläge, lätt att parkera för personal och besökare i ett företagstätt område med olika verksamheter. Lokalen är uppdelad med flertal kontorsrum i dag med möjlighet att anpassa lokalen för just din verksamhet.
Välkommen!
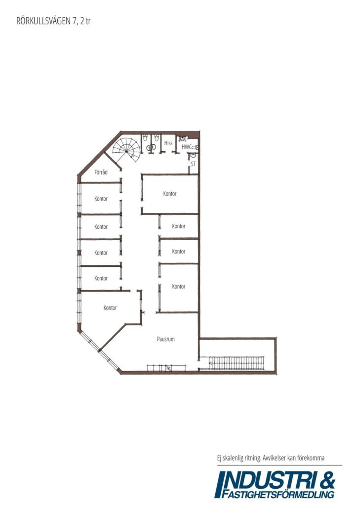
Ljust kontorsplan med flertal kontorsrum, från baksidan når man lageryta via port med direkt anslutning till lokalen. Kök med matplats , trappa och hiss till övre plan med kontorsrum. Lokalen är något eftersatt så anpassning enligt överenskommelse är möjlig för just din verksamhet.
Hittar du inte det du söker? Fyll i dina önskemål i formuläret så återkommer vi till dig så snart vi får in något vi tror kan vara av intresse!