FLEXIBEL KONTORSLOKAL MED MODERN HELHET OM 355 KVM MED SOLIG TAKTERRASS SOM EXTRA MERVÄRDE!

Moderna kontorsytor i krativ miljö!

SNABBA FAKTA

ADRESS:........ Linjegatan 5

OMRÅDE:........ Halmstad, Centralt, Öster

TYP AV LOKAL:……….Kontor

AREA:........ 355 kvm

VÅNING:........ 5 av 5

HYRA:........639 000 kr/år

HYRA/KVM:........1 800 kr/kvm/år

Moms:........Tillkommer

INGÅR I HYRA:........Uppvärmning , Vatten, Internet

ÖVRIGT:........El tillkommer samt, kyla och fiberleverantör.

Inget bokningsdatum tillgängligt

Enbart bokade visningar. Ring eller maila för att boka din tid! Vänligen respektera ägarens önskemål om att all kontakt sker via Industriförmedling.

broker

Kontakt | Fastighetsmäklare

KALLE SVENSSON

073-1499503
kalle@industriformedling.se

FAKTA

BESKRIVNING

Exklusiv kontorsvåning i Halmstad – Kreativ och representativ miljö vid Trade Center och Högskolan
Letar du efter något utöver det vanliga? Nu finns möjligheten att etablera ditt företag i en unik kontorslokal mitt i ett av Halmstads mest expansiva och dynamiska företagsområden – ett levande nav för innovation, samverkan och tillväxt.

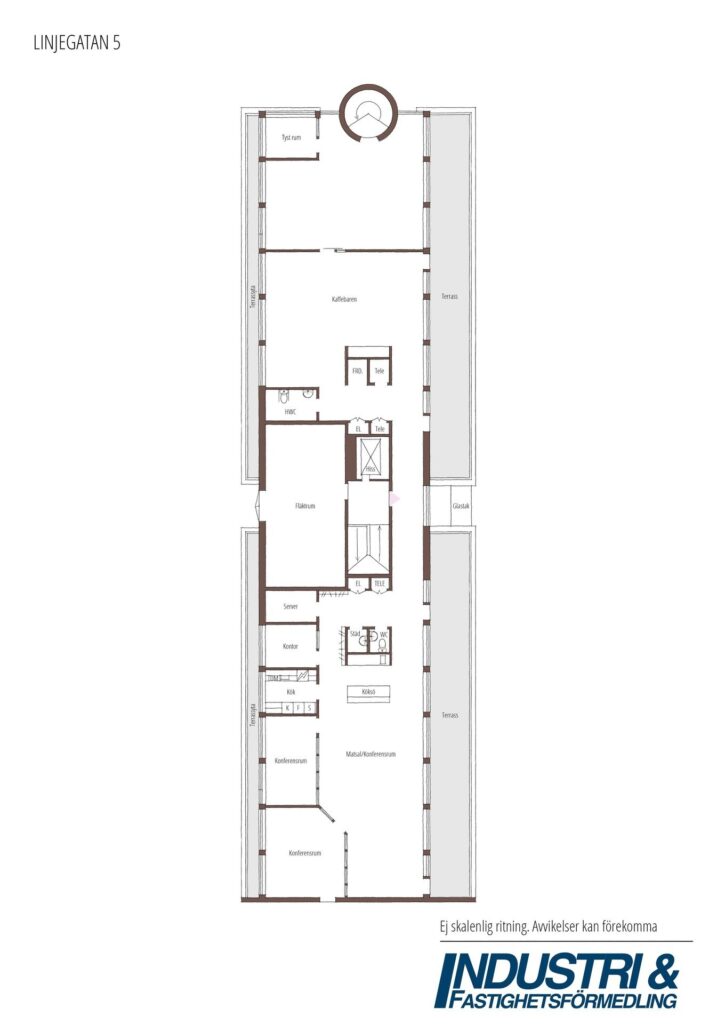
Hela våningsplan – 355 kvm med terrass i bästa solläge
Lokalen omfattar ett helt våningsplan om ca 355 kvm på plan 5. Här får du inte bara full kontroll över layout och arbetsmiljö – du får också tillgång till en solig terrass som bjuder in till avkoppling, informella möten och kreativa pauser under dagens gång.

Modern och funktionell planlösning
Lokalen är genomtänkt utformad för att passa både daglig verksamhet och externa möten:

Flera ljusa och avskilda kontorsrum

Modernt konferensrum

Generöst kök och separat barkök

Fräscha toaletter

Öppna ytor som bjuder in till samarbete

Ljus, rymd och kreativ energi
Varje rum präglas av stort ljusinsläpp och en luftig atmosfär – vilket skapar en arbetsmiljö där både fokus och kreativitet får utrymme. Perfekt för företag som vill erbjuda sina medarbetare en inspirerande plats att växa på.

I hjärtat av ett levande företagskluster
Området runt Högskolan i Halmstad och Trade Center är mer än en plats – det är ett nätverk. Här möts företag, studenter och entreprenörer i en miljö där samarbeten och innovation frodas. I direkt närhet finns:

Restauranger och caféer

Matbutik

Högskola och inkubatorsverksamhet

Kommunikation i toppklass
Endast några minuter till resecentrum och citykärnan

Direkt anslutning till E6 – smidig tillgång för både lokal och nationell pendling

Goda bussförbindelser och cykelvägar

En plats att trivas – en plats att växa
Det här är mer än ett kontor – det är en miljö där företag och människor utvecklas tillsammans. En plats där du kan bygga kultur, affärer och framtid.

Välkommen att uppleva lokalen på plats
Boka en visning och upplev möjligheterna själv. Kontakta oss för mer information – den här lokalen vill du inte missa.

3D VISNING

BILDER

PLANLÖSNINGAR & RITNINGAR

NÄROMRÅDET

Centralt, Öster

Området räknas som “Högskoleområdet”, där du finner:

Högskolan i Halmstad på promenadavstånd

ICA Maxi Högskolan, lunchrestauranger och caféer (t.ex. Café Mangold) precis i närheten

Idrottscentrum Halland med gym och träningspass, inklusive rabatter för hyresgäster

Logistikläge gränsande mot E6/E20 och vägarna 15, 25, 26 – smidigt för pendling med bil

Mycket goda bussförbindelser till centrum och runt staden, och Halmstads resecentrum ligger en kort promenad bort (10–15 min)

Transport & parkering
Direkt kollektivtrafik: flera busslinjer passerar Larsfrid/Högskoleområdet, snabbt till centrum.

Parkering finns utanför huset – gratis eller avgiftsbelagd, inklusive laddningsstationer för elbilar

Resecentrum med tåg, buss och regionala förbindelser ligger cirka 10‑15 min bort, och Halmstad C har snabbtåg som Öresundståg och god regionaltågtrafik.

Området kännetecknas av moderna kontors- och utbildningsbyggnader, grönska och små oaser.

Sammanfattning
Linjegatan 5 i Larsfrid är en modern, flexibel och välkomnande kontorsadress med smarta tekniska lösningar. Området kombinerar god transport, rik service, närhet till högskola och logistikfördelar. Perfekt för såväl utbildningsverksamhet som företag inom IT, myndigheter eller konsultverksamheter.

INTRESSEANMÄLAN
______

Hittar du inte det du söker? Fyll i dina önskemål i formuläret så återkommer vi till dig så snart vi får in något vi tror kan vara av intresse!